
Во время открытия первой очереди парка семейных приключений в Манжероке, ещё до появления названия «Дримвуд», для посетителей были доступны две ключевые активности — трасса родельбана и трасса тюбинга. Эти аттракционы сформировали не только первичное развлекательное предложение, но и заложили основу пространственной, логистической и сценарной структуры будущего парка, определив характер его восприятия на раннем этапе и задав вектор дальнейшего развития территории.
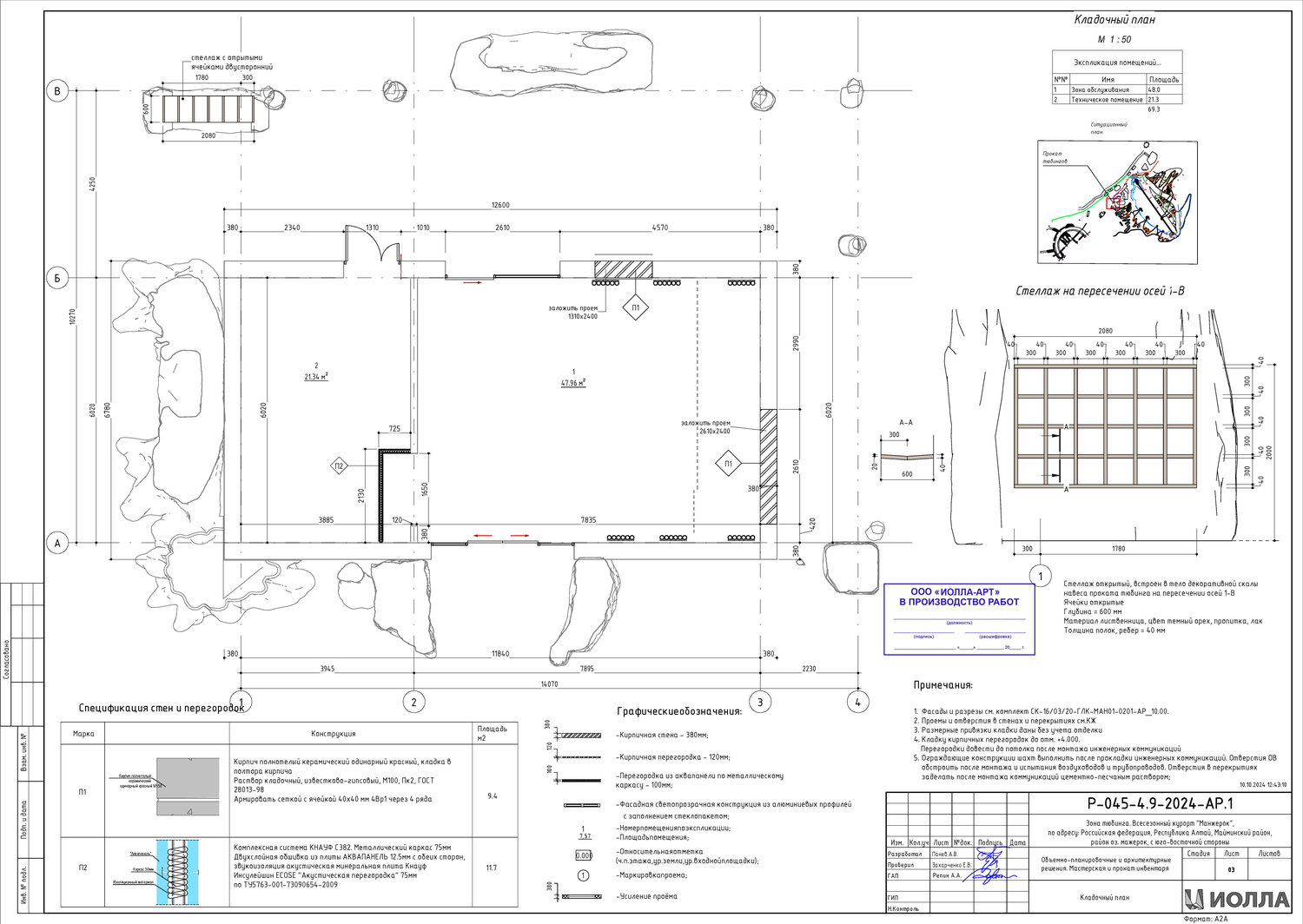
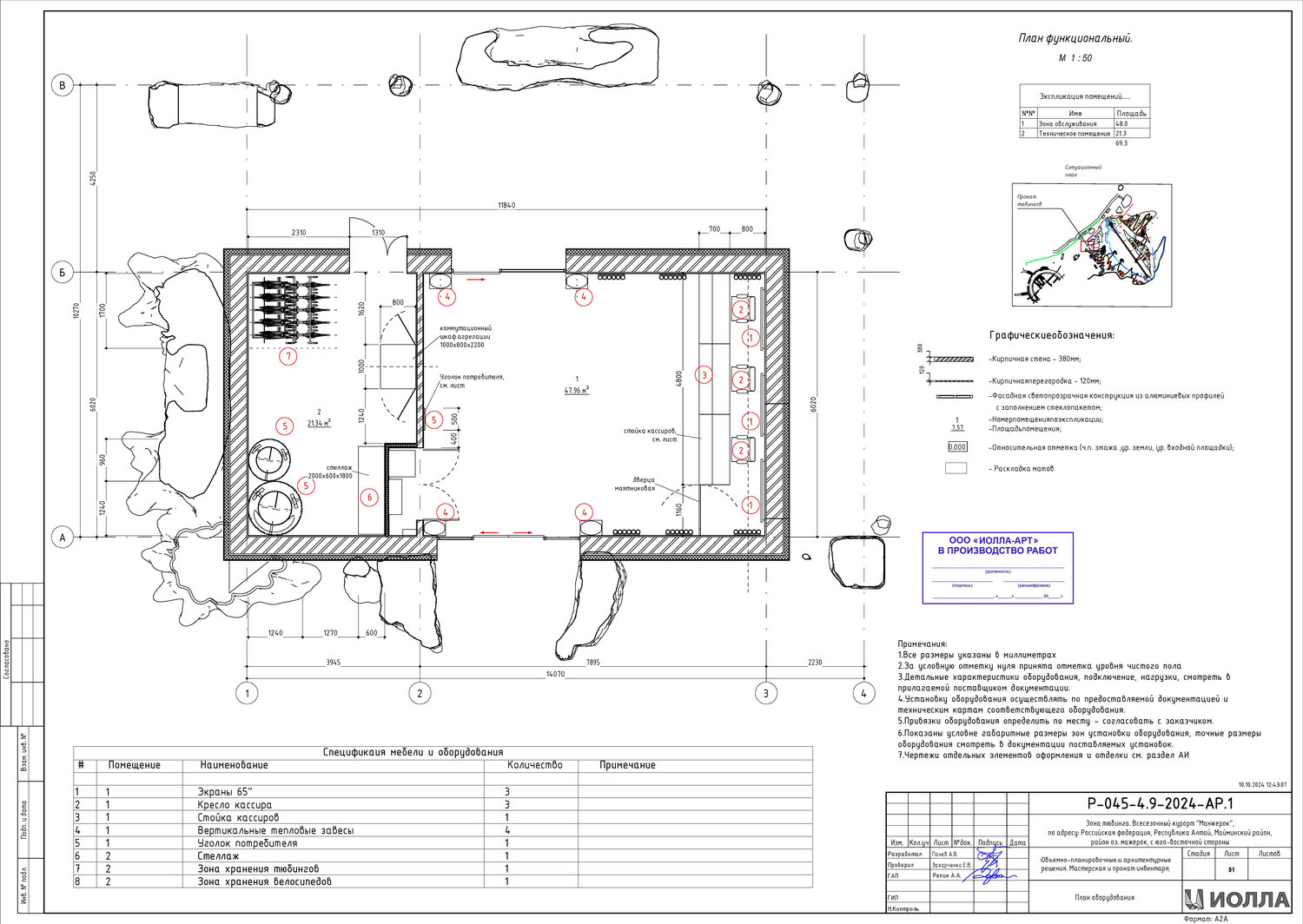
Тюбинг как аттракцион представляет собой динамичную систему с протяжёнными спусками и выраженными перепадами высот между стартовой и финишной точками. Его эксплуатационная модель требует чёткой организации потоков посетителей, синхронизации процессов выдачи и возврата оборудования, а также продуманной инфраструктуры, начинающейся с входной группы. Эта зона объединяет функции кассового узла и станции выдачи тюбов, формируя первый функциональный и эмоциональный контакт посетителя с аттракционом.
В традиционной практике подобные здания проектируются как утилитарные объекты с чётко регламентированной структурой. Как правило, в их составе присутствуют кассовая зона, блок выдачи снаряжения, организованное пространство ожидания, технические помещения и зоны для обслуживающего персонала. Однако в контексте тематического парка подобная функциональная логика становится лишь базовым слоем, на который наслаивается более сложная художественно-повествовательная система.
Здесь утилитарность не устраняется, но переосмысляется и интегрируется в общий нарратив. Входная группа тюбинга в Манжероке была спроектирована как неотъемлемая часть легенды горной территории «Дримвуда», где архитектура выступает в роли медиатора между функцией и смыслом, обеспечивая не только обслуживание потоков, но и формирование эмоционального опыта.
В этом заключается принципиальное отличие тематического парка от традиционного парка аттракционов. Если в классической модели функция диктует форму и определяет пространственную организацию, то в тематической среде форма становится носителем истории, а пространство — инструментом повествования. Функциональная структура выступает каркасом, на который накладывается художественный образ, формируя многослойную систему восприятия.
Тюбинг, наряду с родельбаном, стал одним из ключевых якорных аттракционов первой очереди строительства. Его запуск сыграл стратегическую роль в формировании позиционирования курорта как всесезонного направления, способного привлекать аудиторию в течение всего года. Соответственно, объект получил не только эксплуатационное, но и концептуальное значение, которое сохраняет свою актуальность и в последующих этапах развития парка.
Художественный образ аттракциона в целом задавал направление формирования всей горной части «Дримвуда». При этом станция тюбинга — дом проката и кассовый узел — стала фактической точкой входа в нарративную структуру парка. Именно через неё посетители первой очереди впервые попадали в пространство тематической среды, что усиливало её роль как элемента первичного восприятия и формировало базовый эмоциональный сценарий взаимодействия.
В основе визуальной и смысловой системы «Дримвуда» лежит образ алтайских духов-хранителей: Волка, Медведя, Совы и Орла. Эти архетипические фигуры формируют не только художественный язык среды, но и её внутреннюю логику, связывая природный контекст региона с мифологическим пластом восприятия. Архитектура станции тюбинга интерпретирует эту систему в форме условного мегалитического храма, где каждый фасад становится самостоятельным образом, посвящённым одному из духов.
Художественное решение основано на принципе гиперболизации и трансформации характерных черт животных в архитектурную пластику. Масштабирование, обобщение и переработка природных форм позволяют сохранить их узнаваемость, адаптируя к требованиям конструктивной логики и эксплуатационной устойчивости. В результате здание выступает как связующее звено между реальным пространством и мифологическим нарративом, формируя у посетителя первичный эмоциональный отклик и задавая ожидание дальнейшего опыта. Центральные композиционные элементы фасадов раскрывают характер каждого духа-хранителя через пластические и фактурные решения.
Фасад Медведя интерпретирован как образ берлоги: входная группа решена в виде массивной лапы, где углубления и выступы формируют подушечки, а нависающие каменные элементы читаются как когти. Тяжеловесность и монументальность форм подчёркивают силу, устойчивость и первобытную энергию образа.
Фасад Совы представлен как дупло, в котором пластика входной группы отсылает к форме птичьей лапы. Трещины и разломы в структуре дерева формируют графику когтей, усиливая ощущение скрытого напряжения и внимательности. Этот фасад работает с более тонкими визуальными нюансами, создавая атмосферу наблюдения и внутренней сосредоточенности.
Фасад Волка развивает тему логова, где форма лапы приобретает вытянутую, динамичную геометрию. Подушечки и когти читаются через пластические выступы и углубления, формируя образ движения и готовности к действию. Здесь архитектура становится более напряжённой, отражая характер архетипа.
Образ Орла (коршуна) реализован через кряжистое дерево, в котором разломы ствола и ветвей формируют силуэт когтей. В отличие от других фасадов, здесь акцент смещён в сторону вертикали и разветвлённой структуры, что придаёт композиции динамику и ощущение устремлённости вверх.
Концептуалисты и архитекторы выстроили систему визуальных рифм между фасадами станции и арками, выполненными в образах тех же духов-хранителей. Эти арки встречают посетителей на старте и сопровождают их в пространстве аттракциона, формируя непрерывную сценарную линию и усиливая эффект погружения в тематическую среду.
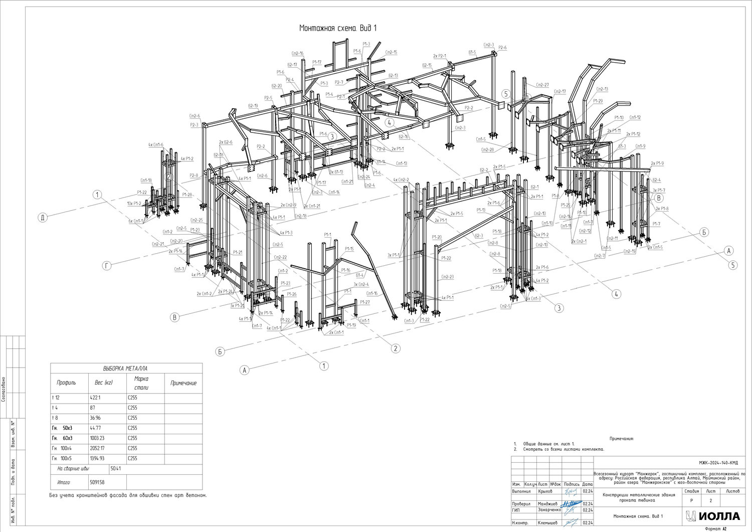
Реализация объекта потребовала комплексного инженерного подхода и разработки детальной конструкторской документации. Проект учитывал сложные климатические условия региона, включая значительные перепады температур, ветровые нагрузки и повышенную сейсмическую активность. В основе конструкции лежит металлический каркас усиленного сортамента, дополненный железобетонными колоннами и несущими стенами, обеспечивающими устойчивость и долговечность объекта.
Строительство велось в несколько этапов — в зимний, весенний и летний периоды — вне зависимости от погодных условий. Такая организация процесса отражает специфику региона и подчёркивает сложность реализации проекта в условиях сурового климата, близкого по своим характеристикам к природной среде, существовавшей здесь на протяжении тысячелетий.
Особое внимание было уделено художественной проработке поверхностей. Каменные фактуры создавались с высокой степенью детализации: художники стремились передать текстурные характеристики шерсти, оперения и других биологических особенностей животных через язык архитектуры. Это решение позволяет воспринимать здание не только визуально, но и тактильно, усиливая эффект присутствия и погружения.
Таким образом, станция тюбинга в Манжероке выходит далеко за рамки своей утилитарной функции, превращаясь в полноценный архитектурный пролог к пространству «Дримвуда». Здесь инфраструктура становится частью повествования, а первое впечатление — осмысленным и управляемым элементом сценария, формирующим основу дальнейшего взаимодействия посетителя с парком и его мифологией.