
Родельбан, известный также как альпийские горки, представляет собой замкнутую систему рельсовых монотрековых путей, предназначенных для скоростного спуска по склонам холмистой или горной местности. Аттракцион сочетает в себе динамику движения и индивидуальный контроль: пассажир размещается в специальной тележке и самостоятельно регулирует скорость, используя ручное тормозное устройство. Это придает поездке не только элемент безопасности, но и ощущение личного участия в управлении маршрутом.
Подобные аттракционы широко распространены на горных курортах Европы — в Германии, Австрии, Швейцарии — где они давно стали частью устойчивой туристической инфраструктуры и круглогодичного досуга. В 2025 году собственный комплекс Родельбана был запущен на горнолыжном курорте «Манжерок». Производителем выступила немецкая компания Wiegand, один из мировых лидеров в проектировании и изготовлении подобных систем.
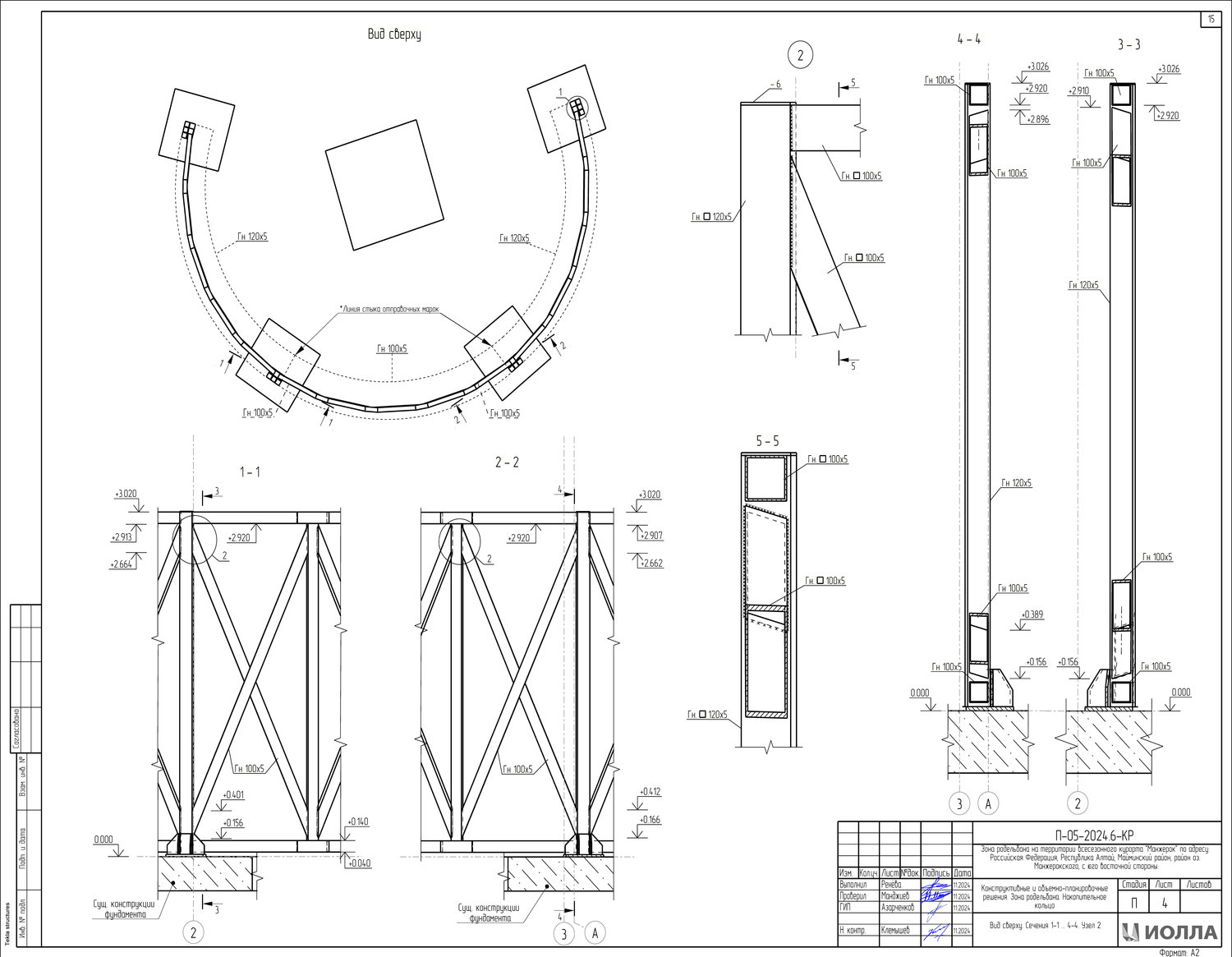
Как и любой рельсовый аттракцион, Родельбан требует организации продуманной инфраструктуры для безопасной посадки и высадки пассажиров. Такие зоны по своей сути напоминают компактный вокзал, включающий билетные кассы, зону накопителя перед посадкой, перрон отправления, перрон прибытия, а также разворотный круг для подвижного состава. При проектировании необходимо учитывать распределение потоков посетителей, требования безопасности, эксплуатационные особенности и нормативные ограничения.
Создание подобных объектов требует комплексной инженерной экспертизы и значительного практического опыта. Проект должен учитывать технические параметры оборудования, специфику рельефа, климатические условия, логистику обслуживания, а также стандарты надежности и безопасности, действующие для аттракционов данного класса.
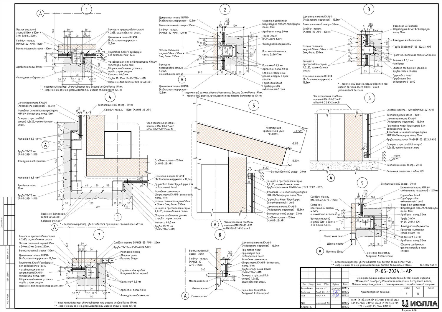
В случае Манжерока задача усложнялась тем, что Родельбан стал частью первой очереди строительства тематического парка развлечений. Это означало, что архитектурные решения должны были не только соответствовать функциональным требованиям, но и вписываться в общую художественную концепцию территории. Внешний облик Станции Родельбана и сопутствующих сооружений проектировался с учетом легенды горной местности и фэнтезийной истории, в рамках которого развивается парк.
Все здания комплекса получили индивидуальный архитектурный образ. Отказ от стандартных заводских конструкций перронов и кассовых павильонов стал принципиальной позицией.
Тематизация предполагает, что каждый элемент пространства несет собственный смысловой слой, «надстроенный» над технической основой аттракциона. Именно в этом заключается ключевое отличие тематического парка от традиционного парка аттракционов: инженерия, искусство и фантазия становятся частью повествования.
Родельбан в Манжероке — один из центральных объектов парка. Поскольку он был введен в эксплуатацию в рамках первой очереди строительства, когда значительная часть будущих активностей еще находилась в стадии проектирования, его роль была стратегической. Аттракцион должен был не только привлекать посетителей, но и формировать первое впечатление о всей концепции пространства.
Сами трассы Родельбана частично скрыты рельефом — они уходят за холмы и растворяются среди деревьев. Поэтому визуальным акцентом становится станция. Ее расположение и ориентация были рассчитаны таким образом, чтобы привлекать внимание с дальних точек обзора. Приближаясь к Станции Родельбана, проходя через кассы и зону ожидания, посетитель постепенно погружается в атмосферу будущего путешествия. Перед ним предстает необычное сооружение, сочетающее техногенность конструкций — балки, стойки, рельсы, перекрытия, кровли — и художественный образ с оттенком истории.
Состаренные фактуры, характер отделки, формы построек, элементы освещения, звуковые и световые детали — колокола, раструбы, лампы — создают впечатление, будто Станция Родельбана была возведена в неопределенном времени группой инженеров-строителей, стремившихся проложить особый путь сообщения в труднодоступной горной и лесистой местности.
Посетитель, оказавшийся на территории станции, интуитивно ожидает, что дальнейший маршрут откроет фрагменты этой загадочной истории. Аттракцион становится не просто поездкой, а путешествием по условному «следу» прошлого. Кажется, что маршрут продолжит историю, начатую у Станции Родельбана, и впереди ждут новые открытия.
С инженерной точки зрения реализация проекта потребовала учета множества факторов: сложного горного рельефа, особенностей грунтов, повышенной сейсмической активности региона. Строительные работы велись с использованием современной подъемной техники, вездеходных машин, автогидроподъемников и высотных строительных лесов.
Дополнительные сложности создавало зимнее строительство. Работы проводились в условиях низких температур и короткого светового дня. Для обеспечения технологических процессов формировались временные тепловые контуры с круглосуточной подачей тепла, а монтаж на открытых участках осуществлялся при интенсивном искусственном освещении.
Результатом стал своевременно введенный в эксплуатацию объект, открытый для посетителей зимой 2025 года и функционирующий круглогодично. Курорт «Манжерок» работает во все сезоны, а Родельбан стал самой протяженной трассой в России среди аналогичных аттракционов, благодаря двухконтурной системе движения.
Маршрут включает подъем на высоту 723 метра, во время которого пассажиры неспешно любуются панорамами и природным ландшафтом, а затем скоростной спуск протяженностью 1465 метров с виражами и динамичными участками трассы. Такое сочетание созерцательного этапа и активного финала формирует целостный эмоциональный сценарий поездки.
Станция Родельбана в Манжероке — пример того, как современная инженерия, архитектура и продуманная тематизация могут объединяться в единое пространство, где функциональность становится основой для создания впечатления, а технический объект превращается в элемент повествования.